《www.9l.cn免费网站》-收藏此网址>

欢迎光临 [ 《www.9l.cn免费网站》 ] 官方网站! 网站首页      |     联系我们

滗水器

产品列表
闸门启闭机系列

MZF型明杆式铸铁镶铜方闸门

用途
       常用于给水、排水、防汛等水利工程。

结构与特点
       本设备主要由门框、闸板、密封圈及可调式楔形压块等部件组成。闸门久用磨损后,其密封面可通过楔形压块的调整来保证正常工作。具有结构合理坚固、耐磨耐腐蚀性强、性能可靠;安装、调试、使用、维护方便等特点。

主要技术参数
       1、闸门应按图示位置安装、闸板设于迎水面;
       2、闸板压向门框允许大压力0.1MPa;
       3、闸板压离门框允许大压力0.02MPa;
       4、密封工作部位渗漏量不大于1.25L/min m。

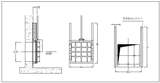
外形示意图及安装尺寸
安装尺寸参数表 300-1000
型号规格 口径 外形及安装尺寸
D×D A b c E H L L1 δ
MZF-300 300×300 456 150 200 83 580 580 456 12
MZF-400 400×400 556 150 250 83 680 680 556 12
MZF-500 500×500 656 150 310 83 780 780 656 12
MZF-600 600×600 790 150 360 123 900 900 790 12
MZF-700 700×700 940 150 420 135 1000 1000 940 12
MZF-800 800×800 1010 150 470 150 1200 1200 1010 12
MZF-1000 1000×1000 1210 150 580 163 1700 1700 1210 12
安装尺寸参数表 1200-2400
型号规格 口径 外形及安装尺寸
D×D A b c E H L L1 δ
MZF-1200 1200×1200 1430 150 690 174 2000 2000 1430 12
MZF-1400 1400×1400 1630 150 800 174 2500 2500 1630 12
MZF-1600 1600×1600 1850 150 900 204 2800 2800 1850 12
MZF-1800 1800×1800 2050 150 1000 220 3200 3200 2050 12
MZF-2000 2000×2000 2270 150 1110 254 3700 3700 2270 12
MZF-2200 2200×2200 2480 150 1210 254 4100 4100 2480 12
MZF-2400 2400×2400 2660 150 1315 260 4500 4500 2660 12

安装尺寸参数表 2600-5000
型号规格 口径 外  形  及  安  装  尺  寸
D×D A b c E H L L1 L2 δ
MZF-2600 2600×2600 2880 200 1410 280 4800 4800 2880 2600 12
MZF-2800 2800×2800 3080 200 1515 320 5200 5200 3080 2800 12
MZF-3000 3000×3000 3310 200 1620 320 5600 5600 3310 3000 12
MZF-3500 3500×3500 3820 200 1880 320 6500 6500 3820 3500 12
MZF-4000 4000×4000 4330 200 2130 360 7500 7500 4330 4000 12
MZF-4500 4500×4500 4830 200 2380 360 8500 8500 4830 4500 12
MZF-5000 5000×5000 5350 200 2650 360 9500 9500 5350 5000 12

展开
《www.9l.cn免费网站》-收藏此网址>